|
Коллекция дверей DENI
Внимание! Осталось всего несколько дверей!
За дополнительной информацией обращайтесь к нашим менеджерам по телефонам:
(495) 447-45-85, 447-37-21
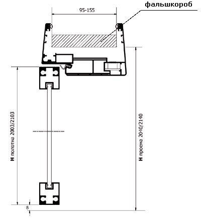
Наличие реверсивного механизма обеспечивает левое и правое открытие алюминиевой
двери без дополнительных установок, а телескопический короб позволяет устанавливать
дверь в проемы с толщиной стен от 95 до 155 мм (для проемов свыше 155 мм предусмотрены
доборы). Все крепежные элементы конструкции скрыты внутри.
Стандартная модель межкомнатной двери имеет размеры по полотну:
632 / 732 / 832x2003 / 2103 мм (с белым, матовым стеклом) для проемов: 690 / 790 / 890x2040 / 2140 мм
Нестандартная модель двери подразумевает другие размеры и типы
отделки

Толщина полотна 35 мм, толщина стекла 5/6 мм
Фурнитура "Hoppe"
|